





















0 comision. Nu se adauga TVA.
Va oferim spre achizitie fara comision o casa individuala cu 5 camere si 120mp utili localizata in Tunari cu acces din Strada Castanului, aproape de Petre Ispirescu.
Casa se poate vinde in doua variante:
238 000 EUR - finisaje la alegere (buget mediu)
208 000 EUR - la alb
In ambele scenarii, casa se preda cu pompa de caldura si panour solare instalate.
Accesul din strada Castanului se face prin drum privat pietruit (aproximativ 70 metri). Casa alfata la vanzare face parte dintr-un ansamblu de 5 case, din care, pe langa cea din poza, inca 2 sunt deja in stadiu avansat de constructie.
Asa cum v-am obisnuit:
- toate ofertele Monga Imobiliare sunt fara comision din partea cumparatorului
- pentru ca iubim transparenta, toate preturile afisate de Monga Imobiliare includ TVA (daca se aplica). Pretul afisat de noi este intotdeauna pretul final pe care il vei achita.
Acceseaza Monga Imobiliare (Monga RO) pentru mai mai multe poze si pentru intreg portofoliul nostru de case si apartamente din Otopeni, Tunari, Balotesti, Corbeanca, Pipera si chiar nordul Bucurestiului.
Punctul forte al acestei case il reprezinta eficienta energetica (pompa de caldura, panouri solare), compartimentarea eficienta si terenul cu suprafata generoasa.
De asemenea, aveti posibilitatea achizitionarii unei case cu 5 camere intr-un buget foarte rezonabil intr-o zona cu acces usor catre Pipera si punctele de interes din zona.
Despre spatiu:
La parter, accesul se face intr-un hol ce comunica cu scara catre etaj, cu o baie, un dormitor sau birou si mai departe catre zona de living -dining foarte spatioada cu bucatarie deschisa. Din living se face accesul catre curte.
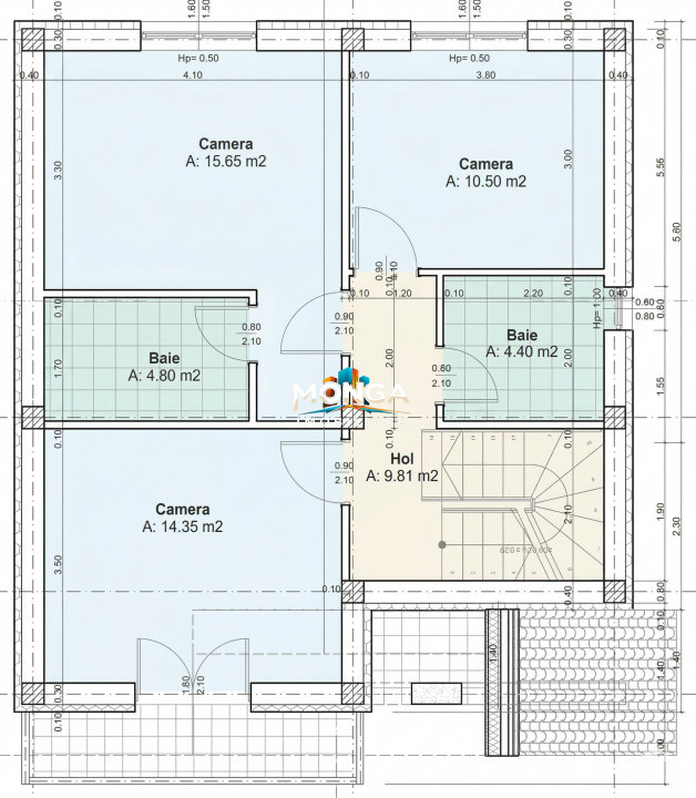
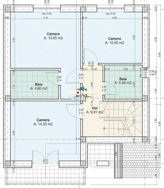
La etaj avem un hol spatios ce comunica cu un dormitor matrimonial cu baie proprie, inca doua dormitoare si o baie.
Pentru varianta cu predare finisata, casa se poate finisa complet intr-un buget agreat cu cumparatorul.
Eficienta energetica este un punct forte al acestei case: panouri solare, pompa de caldura, put si fosa, termoizolatie de 15cm.
Alte detalii:
- incalzire prin pardoseala
- tamplarie Salamander cu geam Tripan
- termoizolatie de 15cm
- pompa de caldura
- panouri solare
Casa este localizata intr-o zona foarte linistita, cu acces rapid catre Pipera, Otopeni si centura capitalei.
Apeleaza cu incredere la Monga Imobiliare. Suntem alaturi de tine pana la finalizarea tranzactiei si te ajutam sa treci cu incredere si in cunostinta de cauza prin toti pasii necesari. Te putem ajuta in pregatirea documentelor, selectia notarului, obtinerea finantarii, si altele. Te asteptam sa ne contactezi.