






























0 Comision. Nu se adauga TVA.
Va oferim spre achizitie fara comision o casa individuala noua, superba, cu 4 camere, 120 mp si un teren de 430mp.
Casa este localizata in Corbeanca pe strada Cantonului.
Se poate opta pentru oricare din urmatoarele vatiante
La alb : 213 000 EUR
Finisaje medii: 260 000 EUR (Include pompa de caldura de 8 kw si panouri solare de 3kw)
Alt nivel de finisare - se discuta la fata locului.
Asa cum v-am obisnuit:
- toate ofertele Monga Imobiliare sunt fara comision din partea cumparatorului
- pentru ca iubim transparenta, toate preturile afisate de Monga Imobiliare includ TVA (daca se aplica). Pretul afisat de noi este intotdeauna pretul final pe care il vei achita.
Acceseaza Monga Imobiliare (Monga RO) pentru mai mai multe poze si pentru intreg portofoliul nostru de case si apartamente din Otopeni, Tunari, Balotesti, Corbeanca, Pipera si chiar nordul Bucurestiului.
Punctele forte al acestei case sunt numeroase: suprafetele foarte generoase, curtea mare si faptul ca se pot alege finisajele dupa preferintele voastre.
Despre spatiu:
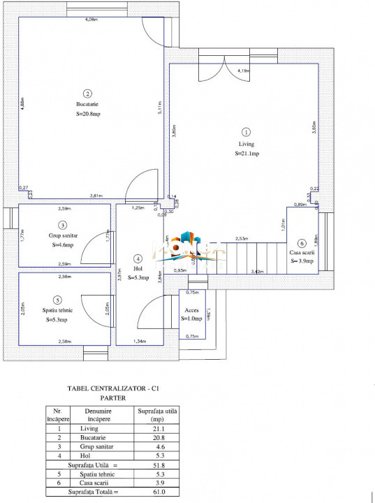
La parter, accesul se face intr-un vestibul ce comunica cu spatiul tehnic dedicat, o baie, bucataria inchisa, si zona de living cu acces catre etaj. Teras si curtea pot fi accesate din bucatarie si din living.
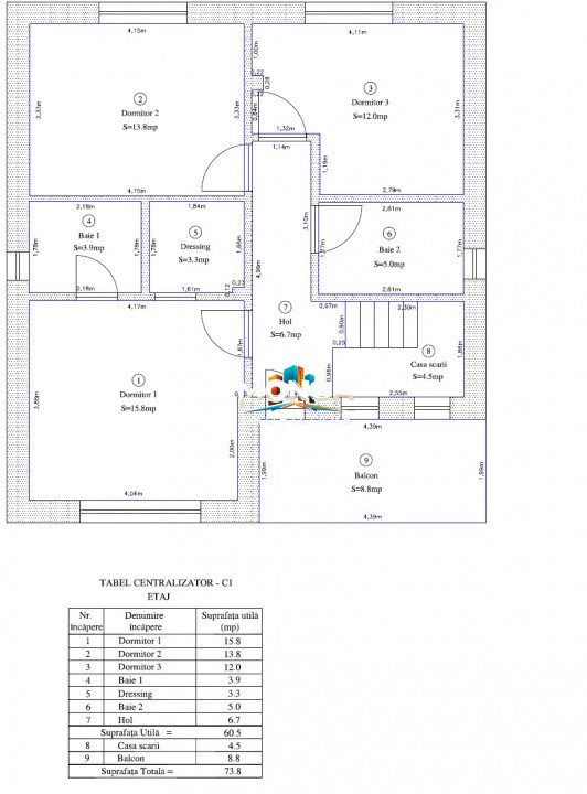
La etaj avem un dormitor matrimonial cu baie si dressing, inca doua dormitoare, o baie si acces catre balcon.
Utilitati
- casa este conectata la curent electric trifazic
- Put de 30m cu camin tehnic 2x2m
- Statie de epurare proprie cu drenaj
- sistem de irigare gazon
- pompa de caldura cu incalzire in pardoseala
- panouri voltaice de 3kw incluse
- priza exterioara trifazica
Despre constructie:
- structura si plansee din beton armat
- tamplarie Tripan 9000S
- termoizilate de 15 la exterior, izolatie de celuloza de 25cm in pod.
Despre locatie:
- strada asfaltata (proaspat reasfaltata dupa finalizare lucrari canalizare)
- acces directe catre Otopeni si catre DNCB/ Pipera
- in apropiere Mega, Lidl, Penny, restaurante, spatii comerciale
- scoli si gradinite in apropiere de stat si private (Scoala Americana, Mark Twain, etc)
- acces rapid catre DN1, DNCB si mai departe A0 si A3.
- acces rapid catre Pipera si Nordul Bucurestiului, mall Baneasa, zona de birouri
Va asteptam la vizionare pentru a descoperi toate aceste detalii si multe altele ale acestei proprietati.
Apeleaza cu incredere la Monga Imobiliare. Suntem alaturi de tine pana la finalizarea tranzactiei si te ajutam sa treci cu incredere si in cunostinta de cauza prin toti pasii necesari. Te putem ajuta in pregatirea documentelor, selectia notarului, obtinerea finantarii, si altele. Te asteptam sa ne contactezi.