





























0 comision.
Va oferim pentru achziitie fara comision o casa individuala localizata in Tunari pe strada Alexandru cel Bun in apropiere de zona Pipera, si Scoala Americana. Casa are o suprafta e 125 mp, are un teren de 233mp si se vinde mobilata si utilata.
Asa cum v-am obisnuit:
- toate ofertele Monga Imobiliare sunt fara comision din partea cumparatorului
- pentru ca iubim transparenta, toate preturile afisate de Monga Imobiliare includ TVA (daca se aplica). Pretul afisat de noi este intotdeauna pretul final pe care il vei achita.
Acceseaza Monga Imobiliare (Monga RO) pentru mai mai multe poze si pentru intreg portofoliul nostru de case si apartamente din Otopeni, Tunari, Balotesti, Corbeanca, Pipera si chiar nordul Bucurestiului.
Despre spatiu:
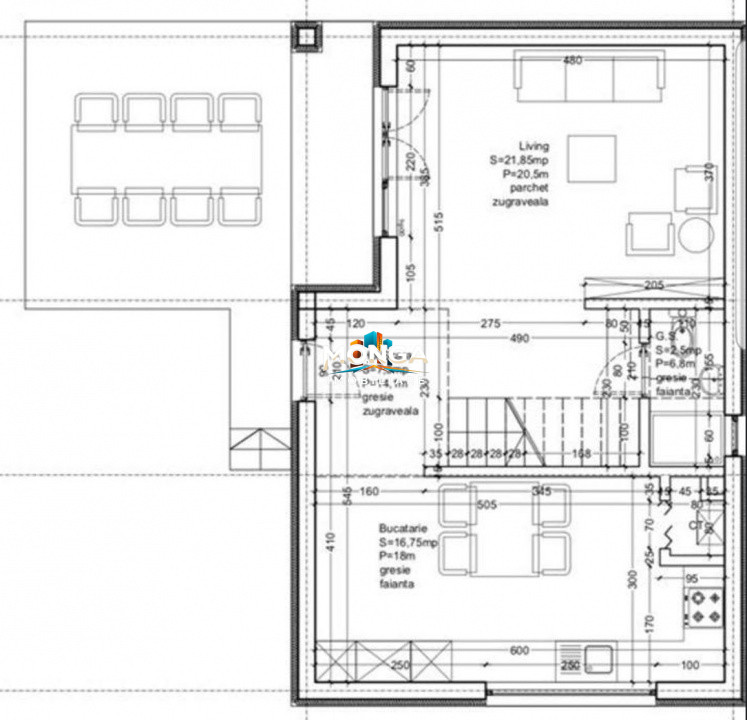
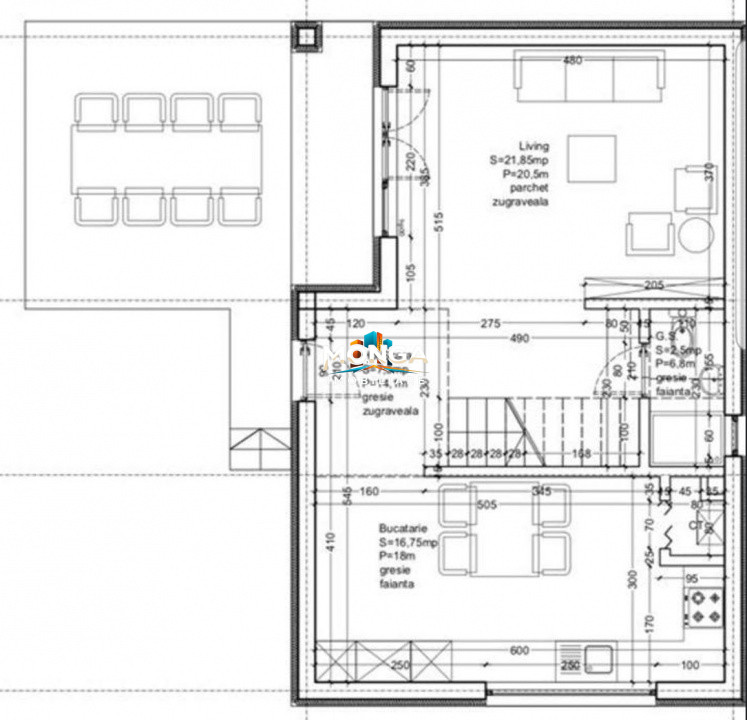
Parter:
Accesul se face printr-un hol cu spatiu pentru dressing. Acesta comunica cu o bucatarie spatioasa cu loc pentru masa, o baie, scara catre etaj si un living cu acces catre terasa.
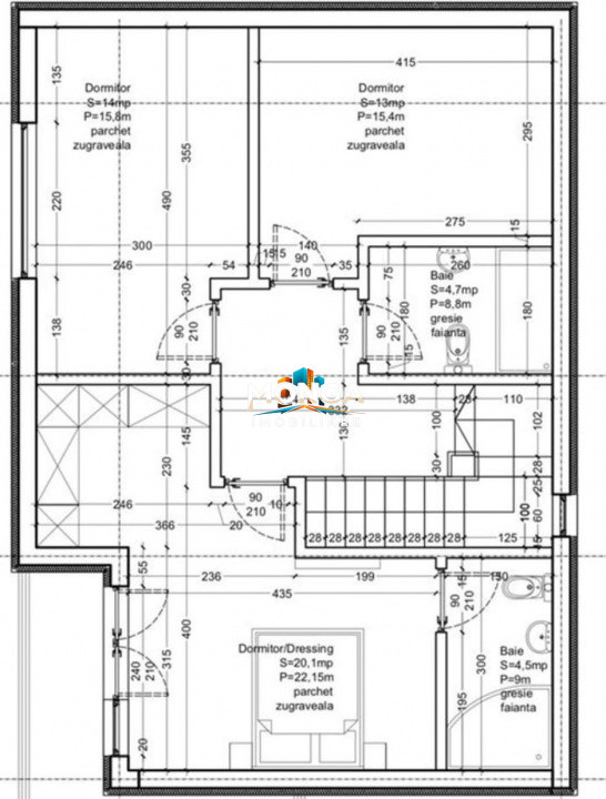
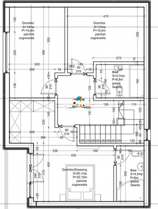
La etaj avem un dormitor matrimonial cu dressing si baie proprie, 2 dormitoare si inca o baie.
In curtea amenajata cu vegetatie avem plante decorative, 10 pomi fructiferi, magazie, gratar, terasa.
Casa detine 1 loc de parcare in curte, pana la 4 locuri in fata si pe lateralul casei.
Casa este prima dintr-un mic complex de 4 case, avand acces direct si catre drumul principal. Locatia permite acces imedata catre Pipera si Centura Capitalei, avand acces usor catre nordul Bucurestiului, scoli si gradinite. In imediata apropiere avem Lidl, Penny si Mega Image. Prin DNCB se pot acces rapid DN1, A3 si A0.
Utilitati: Casa este conectata la gaz si curent electric. Are put si fosa septica; canalizarea este planificata in zona pentru acest an. Detine panouri fotovoltaice cu baterie de stocare si dosar de prosumator. Incalzirea se face prin pardoseala si detine doua aparate de aer conditionat.
Alte aspecte:
- Caramida de 25 cm la exterior si de 12,5 cm la compartimentarile interioare;
- Toți pereții sunt tencuiti cu tencuiala si glet(Ceresit CT126+CT127) si lavabila;
- Termosistem polistiren ignifug 10 cm EPS 80;
- Acoperisul este cu tigla metalica si izolatie cu vata de 20 cm;
- Tamplarie cu geam tripan Euro 70 - Roto;
- Finisaje de super calitate, rezistente la uzură si intemperii;
Apeleaza cu incredere la Monga Imobiliare. Suntem alaturi de tine pana la finalizarea tranzactiei si te ajutam sa treci cu incredere si in cunostinta de cauza prin toti pasii necesari. Te putem ajuta in pregatirea documentelor, selectia notarului, obtinerea finantarii, si altele. Te asteptam sa ne contactezi.