
























































Va oferim spre achizitie fara comision o casa tip duplex superba, cu finisaje si dotari premium, complet mobilata si utilata la cel mai inalt nivel de calitate.
Asa cum v-am obisnuit:
- toate ofertele Monga Imobiliare sunt fara comision din partea cumparatorului
- pentru ca iubim transparenta, toate preturile afisate de Monga Imobiliare includ TVA (daca se aplica). Pretul afisat de noi este intotdeauna pretul final pe care il vei achita.
Acceseaza Monga Imobiliare (Monga RO) pentru mai mai multe poze si pentru intreg portofoliul nostru de case si apartamente din Otopeni, Tunari, Balotesti, Corbeanca, Pipera si chiar nordul Bucurestiului.
Punctele forte al acestei case sunt numeroase, incepand bineinteles cu locatia cu vedere la lac, si amenajarea premium cu materiale si mobilier de calitate.
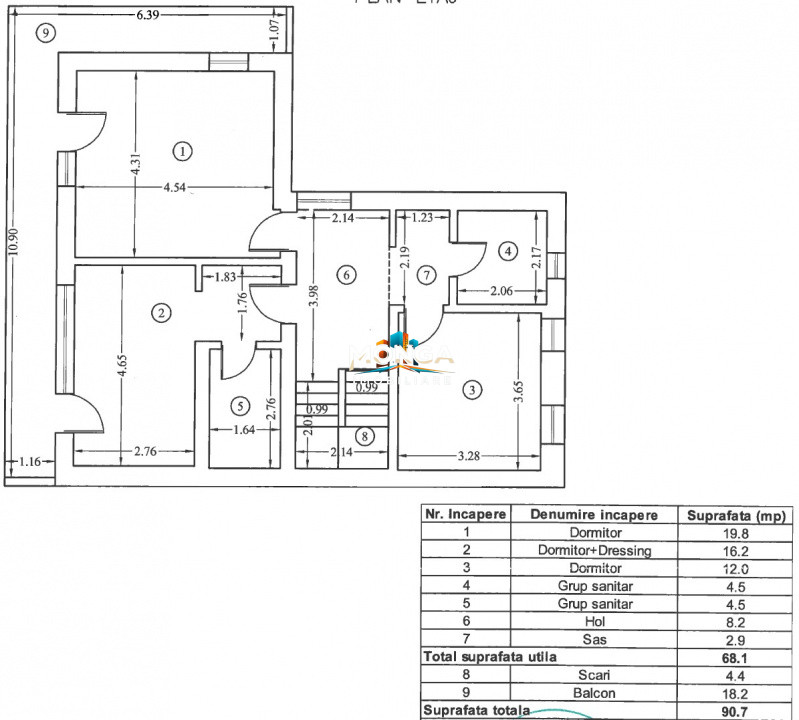
Despre spatiu:
La parter, accesul se face intr-un hol ce comunica pe de o parte cu spatii de depozitare, o baie si un birou, cu scarile catre etaj, iar pe cealalta parte cu living-dining spatios cu bucatarie deschisa.
La etaj avem un dormitor matrimonial cu baie proprie, inca doua dormitoare si o baie.
Din living se acceseaza terasa generoasa inchisa pentru un plus de confort.
Va asteptam la vizionare pentru a descoperi toate aceste detalii si multe altele ale acestei proprietati cu adevarat deosebite.
Apeleaza cu incredere la Monga Imobiliare. Suntem alaturi de tine pana la finalizarea tranzactiei si te ajutam sa treci cu incredere si in cunostinta de cauza prin toti pasii necesari. Te putem ajuta in pregatirea documentelor, selectia notarului, obtinerea finantarii, si altele. Te asteptam sa ne contactezi.