

























0 Comision!
Va oferim spre achziitie fara comision o locuinta superba cu 5 camere, luminoasa si spatioasa cu finisaje de calitate, localizata in Corbeanca, pe strada Ogorului intr-un complex rezidential. Casa are o suprafata de 150mp si se alfa pe un teren de 600mp.
Asa cum v-am obisnuit:
- toate ofertele Monga Imobiliare sunt fara comision din partea cumparatorului
- pentru ca iubim transparenta, toate preturile afisate de Monga Imobiliare includ TVA (daca se aplica). Pretul afisat de noi este intotdeauna pretul final pe care il vei achita.
Acceseaza Monga Imobiliare (Monga RO) pentru mai mai multe poze si pentru intreg portofoliul nostru de case si apartamente din Otopeni, Tunari, Balotesti, Corbeanca, Pipera si chiar nordul Bucurestiului.
Casa se vinde mobilata si utilata asa la un nivel foarte bun de calitate.
Intre punctele forte ale acestei case subliniem locatia, aproape de DN1 si punctele de interes din zona, faptul ca este mobilata si utilata foarte inalt calitate si comunitate bine formata in zona.
Despre spatiu:
Accesul se face printr-un hol ce comunica cu camera tehnica, o baie si biroul. Holul continua apoi catre scari si o zona de living dining spatioasa ce se contine cu bucataria so ofera si acces spre terasa de 26mp si curte. Bucataria este separabila cu usi glisante.
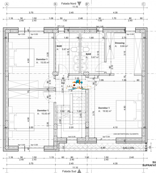
La etaj avem dormitorul matrimonial cu dressing si baie, inca doua dormitoare si o baie.
Terenul liber este de 475mp, este amenajat cu gazon, pomi fructiferi, plante ornamnetale, sistem de irigatie alimentat din put propriu.
Casa are doua locuri de parcare din care unul este acoperit.
Despre casa:
- se vinde complet mobilata si utilata.
- este conectata la utilitati. Incalzirea se face prin pardoseala.
- finisaje premium
- rulouri la dormitoare si living
Despre locatie:
- gradinita, scoala primara in apropiere
- Lidl, Mega Image, benzinarie
- transport in comun
Apeleaza cu incredere la Monga Imobiliare. Suntem alaturi de tine pana la finalizarea tranzactiei si te ajutam sa treci cu incredere si in cunostinta de cauza prin toti pasii necesari. Te putem ajuta in pregatirea documentelor, selectia notarului, obtinerea finantarii, si altele. Te asteptam sa ne contactezi.