





























0 Comision. Nu se adauga TVA.
Va oferim spre achizitie fara comision o casa individuala noua, superba, cu finisaje si dotari premium localizat in complextul Amber Forest din Tunari. Casa are 4 camere, 120 mp si un teren de 189mp.
Complexul Amber Forest este un concept rezidential premium cu facilitati extinse, scoala privita, loc de joaca, padure localizat in Tunari cu acces facil catre Bucuresti, Pipera, Otopeni.
Asa cum v-am obisnuit:
- toate ofertele Monga Imobiliare sunt fara comision din partea cumparatorului
- pentru ca iubim transparenta, toate preturile afisate de Monga Imobiliare includ TVA (daca se aplica). Pretul afisat de noi este intotdeauna pretul final pe care il vei achita.
Acceseaza Monga Imobiliare (Monga RO) pentru mai mai multe poze si pentru intreg portofoliul nostru de case si apartamente din Otopeni, Tunari, Balotesti, Corbeanca, Pipera si chiar nordul Bucurestiului.
Punctele forte al acestei case sunt numeroase: spatiile generoase, localizarea langa padure, finisajele de super calitate si complexul rezidential cu facilitati multiple din care face parte.
Despre spatiu:
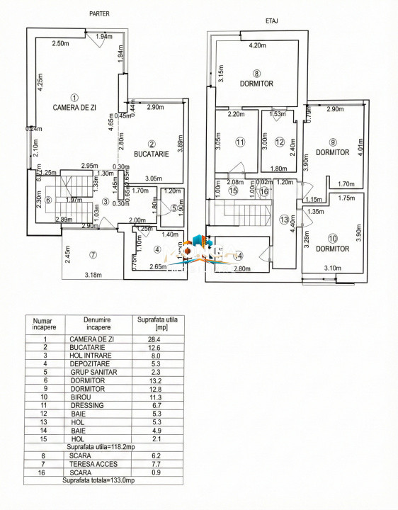
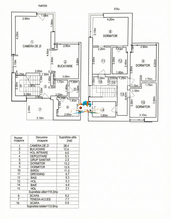
La parter, accesul se face dintr-o mica terasa exterioara catre un hol de distributie. De aici se acceseaza zona tehnica (cu spatiu depoztiare/ haine, grup sanitar si camera tehnica), scarile catre etaj si zona de lving-dining-bucatarie - 40mp. Curtea si terasa poate fi accesate din living si din bucatarie.
La etaj avem un dormitor matrimonial cu dressing si baie proprie, inca doua dormitoare si o baie.
Casa este ideala pentru o familie, intr-un complex modern cu toate facilitatile disponibile, langa padure si ofering acces facil catre Bucuresti.
Utilitati
- Complex modern cu toate utilitatile
- pompa de caldura cu incalzire prin pardoseala si ventiloconvectoare
- infrastructura pregatita pentru incarcare masini electrice
Alte detalii:
- curte amenajata cu gazon si plante decorative
- bai cu finisaje superioare (nu cele dstandard din Amber Forest).
- dotari suplimentare/ premium incluse precum storuri exterioare.
Amber Forest este un complex premium ce include loc de joaca, paza, parc, facilitati sportive, zona comerciala, cafenele, scoala (unele dintre ele in curs de constructie). Complexul este gandit ca un spatiu pentru familii care ofera toate cele necesare pentru viata de zi cu zi.
Va asteptam la vizionare pentru a descoperi toate aceste detalii si multe altele ale acestei proprietati.
Apeleaza cu incredere la Monga Imobiliare. Suntem alaturi de tine pana la finalizarea tranzactiei si te ajutam sa treci cu incredere si in cunostinta de cauza prin toti pasii necesari. Te putem ajuta in pregatirea documentelor, selectia notarului, obtinerea finantarii, si altele. Te asteptam sa ne contactezi.